Ny 1. sal til sammenbragt familie
Beskrivelse af projektet
En familie med 4 børn ønskede at udnytte deres overetage bedre i forbindelse med at de alligevel skulle have nyt tag på huset.
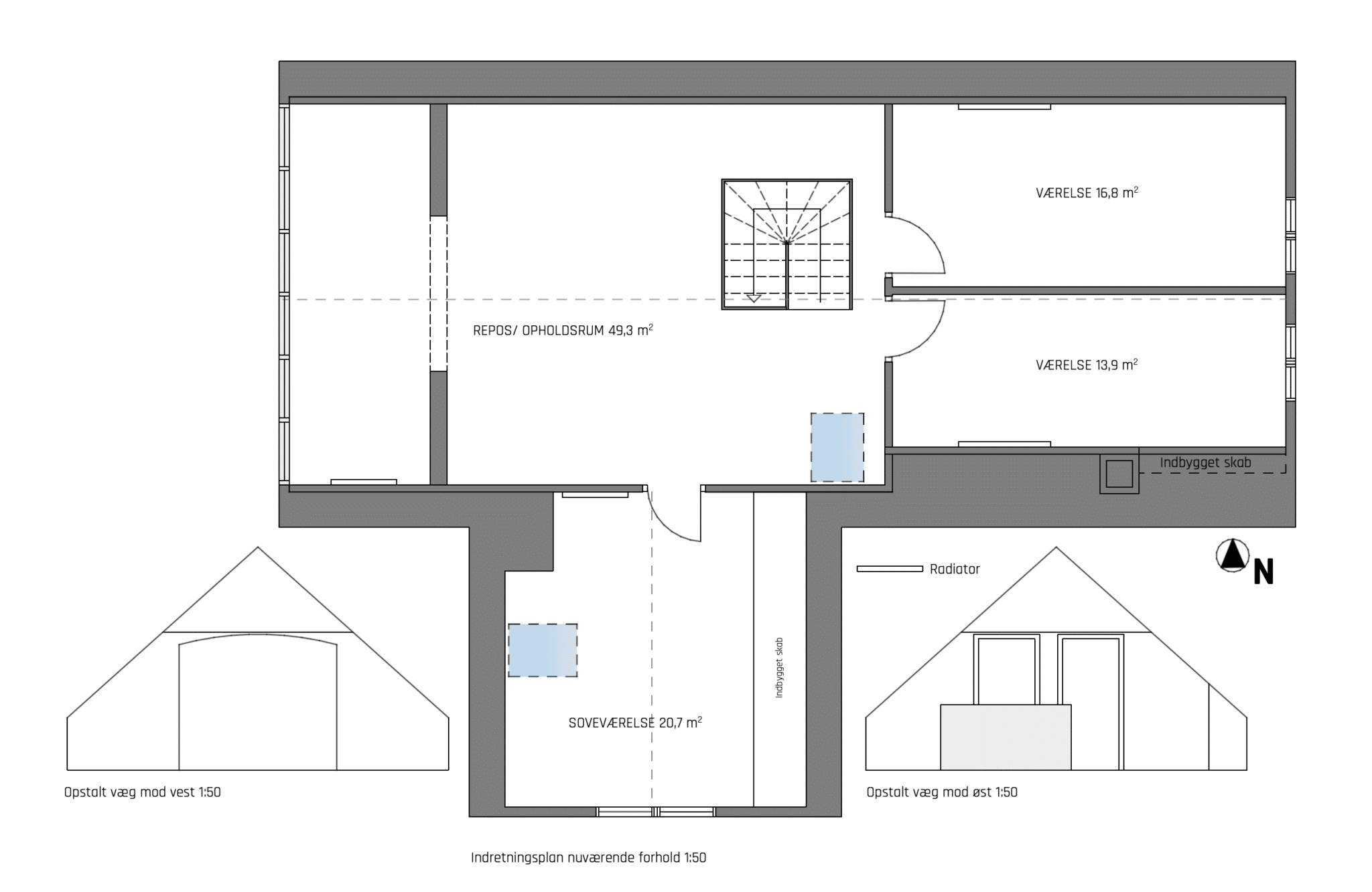
De havde brug for en hel ny planløsning med flere børneværelser samt etablering af et badeværelse. For at opfylde familiens ønsker blev der skabt tre børneværelser, et soveværelse, et badeværelse samt en ekstra stue og en masse opbevaringsplads.
Der blev lavet fritlagte bjælker, etableret flere ovenlysvinduer og etagens skunke blev udnyttet til opbevaring. Alle væggene og de indbyggede skabe blev malet i en varm ultra mat grå-grønlig farve, og for at give ekstra stemning blev der lavet en biopejs i stuen.
Der blev opsat retningsbestemt belysning foran skabe o.lign. som blev suppleret af blød hyggebelysning i form af rispapiralamper og dæmpbare Flos gulvlamper.
I soveværelset blev der lavet en lang skabsvæg, som blev afsluttet af et indbygget skrivebord, og foran skabsvæggen blev der opsat skydelåger for at skjule garderoben og hjemmekontoret. I børneværelserne blev skunkene udnyttet til sovenicher samt indbyggede skabe. På badeværelset blev der lavet en bred bruseniche med en indbygget niche til shampoo, og der blev lavet et vaskemøbel som passede ind i hakket under to ovenlysvinduer. Der blev ligeledes lavet et indbygget rum til håndklæder samt en skabsvæg med et væghængt toilet.
Overetagen er blevet en hyggelig del af huset, som fungerer optimalt for den travle børnefamilie.
Kontakt Aarhusrum
Har du spørgsmål? Kontakt os og lad os tage en uforpligtende snak
Finder du ikke nok informationer om din ønskede opgave her på hjemmesiden, er du altid meget velkommen til at kontakte Aarhusrum til en uforpligtende snak og eventuelt et tilbud på opgaven.
Ring på telefon (+45) 26 83 01 55 eller send en mail til line@aarhusrum.dk. Din henvendelse vil blive besvaret hurtigst muligt.